NEWS | ファッション / 建築
2020.06.30 15:00

▲写真:志摩大輔
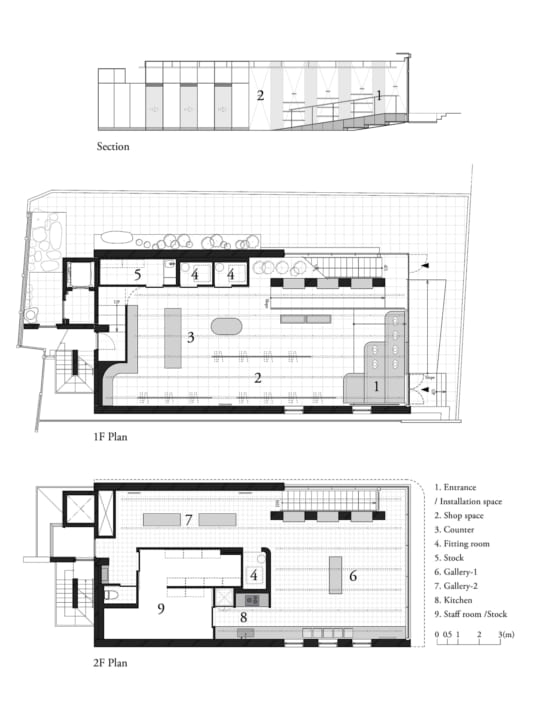
東京・南青山に2020年4月、二俣公一が主宰するCASE-REALが店舗内装を手がけた「ヨーガンレール青山店」がオープンした。
敷地は南青山の角地にあるRC造の建物で、ボリュームの二面には大きなウィンドウ面があり、自然光の入り方が美しい場所だという。

▲写真:志摩大輔
その一方で、前面道路の高さからエントランスまでは下るようにスロープになっており、1階の床はさらにそこから50cmほど低くなっているなど、グラウンドレベルと内部の高低差が激しい空間でもあるそうだ。

▲写真:志摩大輔
計画では、この高低差を極力小さくして差を埋めるのではなく、最大限生かして天井高さの大きな空間を確保することにした。

▲写真:志摩大輔
まず、店内のエントランスには、広葉樹の無垢材でできた奥行きの深いステップを設置。ブランドの持つ大らかな雰囲気にフィットするように大きく丸みをつけ、導入部からその世界観を感じられるようにしている。

▲写真:志摩大輔

▲写真:志摩大輔

▲写真:志摩大輔
また、アプローチも含めて一体的な空気を作るため、外構周りから内部にかけて、床は全て同材の天然石を張り込んでいる。そこに、オーク材や布クロスのほか、照明や吊り下げラックなどを必要に応じてカスタムできる、溶融亜鉛メッキ仕上げのオリジナルの照明ラインを掛け合わせることで、天然素材の持ち味を生かしたものづくりを行うヨーガンレールにふさわしい素材構成ができあがった。

▲写真:志摩大輔

▲写真:志摩大輔

▲写真:志摩大輔

▲写真:志摩大輔
ギャラリーフロアである2階は、1階と同じ天然石で床を仕上げつつ、壁やキッチンカウンターは彩度の高い左官仕上げを採用。ブランドイメージからインスピレーションを受けたカラーで、フロアに上がった瞬間に1階とは異なる雰囲気を感じられるようになっている。![]()

▲写真:志摩大輔

▲写真:志摩大輔

▲写真:志摩大輔

▲写真:志摩大輔

▲写真:志摩大輔

▲写真:志摩大輔













